Это потрясающе! Квартира 70 кв. м в Тобольске с эффектным интерьером

Дизайнер использовала насыщенные и сложные оттенки, много декоративных решений, чтобы создать по-настоящему запоминающийся интерьер.

Содержание
Заказчики и задачи
Владельцы этой квартиры семейная пара. Хозяйка развивает бизнес посуточной аренды в Тобольске. К дизайнеру Елене Максимовой она обратилась с запросом оформить необычный интерьер, который будет привлекать внимание туристов. «Нужно было сделать яркие цветовые акценты и решения, на которые не каждый решится в своей квартире. Хотелось, чтобы гостям было интересно рассматривать каждую деталь и уголок пространства. Поэтому в квартире много искусства и декоративных элементов», рассказывает Елена.
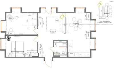
Перепланировка
Изначальная планировка не до конца устраивала хозяев: три изолированные комнаты, кухня, ванная. Решили сделать перепланировку. Одну из спален увеличили, чтобы разместить там полноценную кровать и шкаф. Кухню объединили с гостиной для создания общего эффектного пространства. Санузел немного увеличили за счет коридора для комфортного размещения всей сантехники.

Отделка
«Концепция предполагала использовать много ярких цветов, но чтобы они между собой хорошо гармонировали и в итоге получилось целостное помещение, поэтому выбирали краски и обои с благородными, припыленными цветами», отмечает Елена. Дизайнер использовала насыщенный винный цвет в прихожей, теплый шоколадный и сине-зеленый в спальнях. В кухне-гостиной стены окрашены в нейтральный бежевый тон. Так как дом кирпичный, одну из стен решили оставить без отделки.

Высокие потолки подчеркивают потолочные карнизы и высокие межкомнатные двери. Классический флер добавляет ламинат, уложенный «елочкой». Интересно и решение с оформлением окон. «Все окна обрамлены молдингами и выкрашены в цвет стен и откосов. Подоконники выполнены из крупноформатного керамогранита под дерево», комментирует дизайнер.

В прихожей для пола выбрали плитку с геометрическим рисунком и в цветах интерьера. В ванной комнате скомбинировали крупноформатный керамогранит под камень, акцентную зеленую плитку, имитирующую рельефные панели. На пол уложили нейтральную плитку серо-бежевого цвета.

Мебель и системы хранения
Систем хранения достаточно для квартиры, которую сдают в краткосрочную аренду. В прихожей разместили высокий шкаф для верхней одежды, обуви, там же хранятся гладильная доска, сушилка, утюг.

Для повседневных вещей гостей предусмотрели шкаф в одной из спален. Там же зона, которая закрывается на ключ, где хранятся полотенца, постельное белье, бытовая химия.

Кроме четырех спальных мест (две двуспальные кровати в спальнях) есть раскладной диван и раскладное кресло в гостиной.

Кухню решили делать без верхних шкафов. Стену над фартуком из плитки эффектно оформили зеркалами, что визуально увеличило пространство. В нижние шкафы встроили стиральную машину, посудомойку, там же спрятали водонагреватель.

В санузле предусмотрена тумба под раковину. Шкафчик над унитазом предназначен для хранения бытовой химии.

Освещение
Свет здесь является не только функцией, но и декоративной частью. В кухне-гостиной две крупные эффектные люстры, подсвечивающие диванную зону и обеденный стол. Кроме этого, есть точечные потолочные светильники и пара бра над кухонными шкафами. В спальнях классические потолочные люстры, прикроватные бра, а в сине-зеленой спальне еще и торшер у кресла. В ванной комнате повесили винтажную люстру. Над раковиной разместили пару точечных светильников.

Елена Максимова Дизайнер, автор проекта
В квартире много окон, открывается красивый вид практически на весь город: на реку Иртыш, на историческую часть Кремль и Софийский собор и на современный город. Поэтому владельцы квартиры дали ей название «Панорама», не каждая квартира в городе может похвастаться такими шикарными видами. Большое количество окон не всегда является плюсом для квартиры для жизни. В квартирах для посуточной аренды не требуется больших зон хранения, большой кухни, поэтому исходные данные нам идеально подходили. Основная идея не делать серый, монохромный интерьер, а создать что-то уникальное. Использовать цвета, от которых становится тепло и хочется улыбнуться насыщенные и смелые. Игра контрастов, смелые сочетания цветов отлично гармонируют друг с другом. Фишкой этой квартиры является действующий граммофон британской торговой марки и винтажные пластинки. В зеленой спальне и санузле висят винтажные зеркала.

Гостиная

Гостиная

Гостиная

Гостиная

Гостиная

Кухня

Кухня

Кухня

Прихожая

Спальня 1

Спальня 1

Спальня 1

Спальня 1

Спальня 2

Спальня 2

Спальня 2

Санузел

Балкон Редакция предупреждает, что в соответствии с Жилищным кодексом РФ требуется согласование проводимых переустройств и перепланировок.




